Akce
Aktuálně
Proč mají dřevostavby teplo, které si zamilujete
PF 2026
Barvy Delta v novém kabátě – představujeme moderní obaly a názvy
AquaClarus – Filtrační systém pro vířivky a malé bazény
PF 2026
Barvy Delta v novém kabátě – představujeme moderní obaly a názvy
AquaClarus – Filtrační systém pro vířivky a malé bazény
Často hledané výrazy
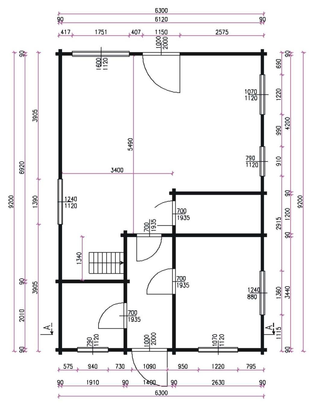
Grabštejn
Tloušťka stěny: 90 mm
Sezonní srubová dřevostavba větších rozměrů, ve které můžete trávit prázdniny, nebo třeba celou sezónu – díky masivnějšímu provedení stěn.
- standardní půdorys 6,3 x 9,2 m
- střecha symetrická
- 9 místností
- terasa v prvním patře
- vchod vepředu a vzadu
- 8 oken
- přední přesah střechy 1,1 m
Půdorys I. NP dřevostavby

Půdorys II. NP dřevostavby

Tabulka základních cen dřevostavby
| Tloušťka stěny | Cena |
| 90 mm | 1 117 200 Kč |
Uvedené ceny jsou vč. 20 % DPH, dopravy a montáže.
Pokud je dřevostavba vnímána jako stavba doplňková ke stavbě hlavní, fakturujeme ve snížené sazdě DPH.
Cena: 1117200 Kč
| Název | Velikost |
| 3.1 MB |
Nejoblíbenější dřevostavby
Přihlásit se
© Keliwood s.r.o., Stavby: +420 - 777 005 666, Prodej: +420 - 777 005 669, Servis: +420 - 777 005 888 E-mail: info@keliwood.cz







