Akce
Aktuálně
Barvy Delta v novém kabátě – představujeme moderní obaly a názvy
AquaClarus – Filtrační systém pro vířivky a malé bazény
PF 2025
PF 2024
AquaClarus – Filtrační systém pro vířivky a malé bazény
PF 2025
PF 2024
Často hledané výrazy
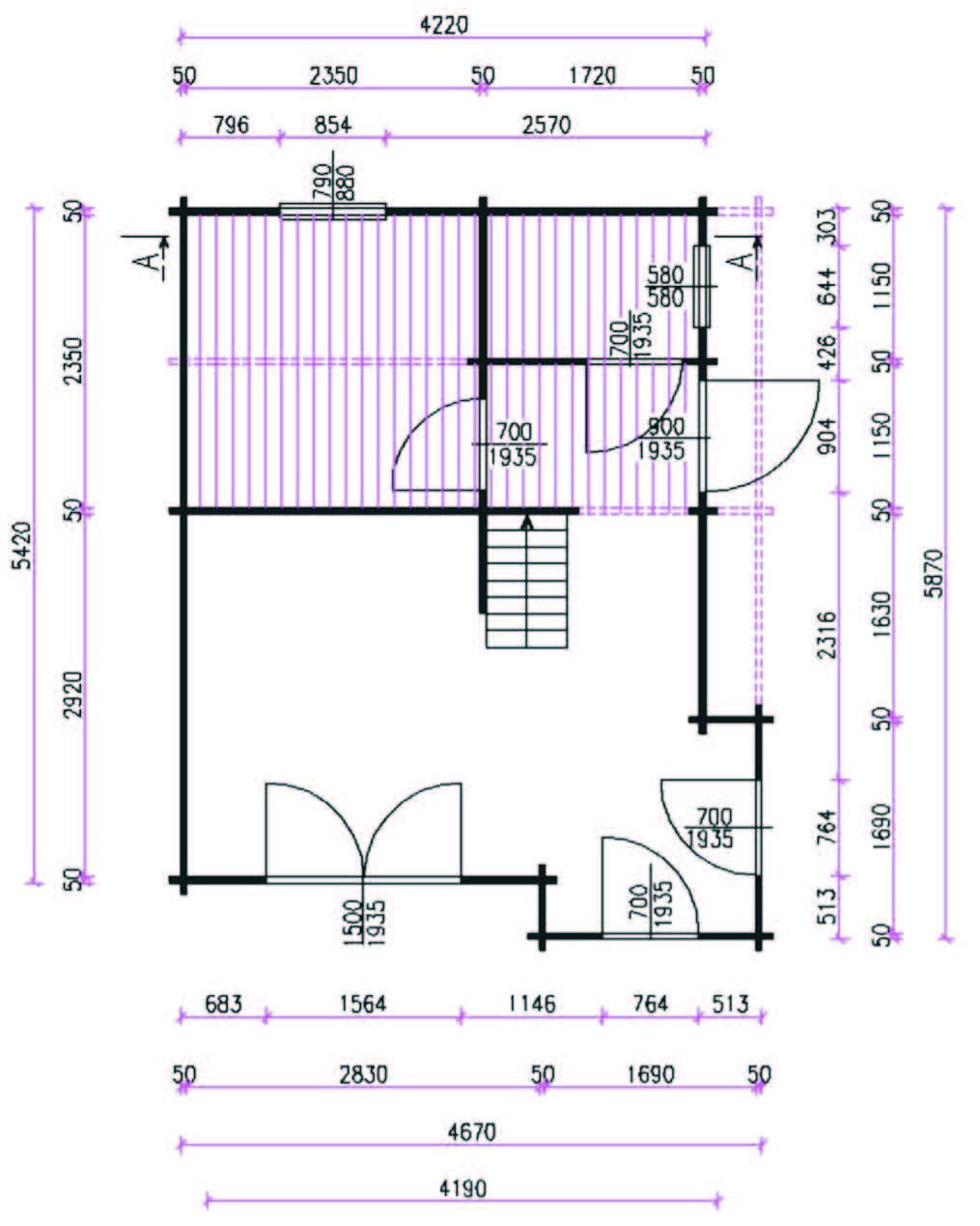
Dobešov
Tloušťka stěny: 50 mm
Víkendová srubová dřevostavba jako je dřevěná chata, chalupa či menší chatka nabízí rodinnou rekreaci nejen o víkendu, ale i v době sezónních dovolených. Různé provedení tloušťky stěn, půdorysů umožňuje výběr srubové chaty přímo dle Vašich představ.
Nepřehlédněte alternativy: obytné podkroví, dřevěná terasa nebo přístavek.
- standardní půdorys 5,9 x 4,2 m
- střecha symetrická
- přední přesah střechy 70 cm
- 3 místnosti, 3 okna, 3 dveře prosklené (přední dvoukřídlové)
- část stěny segmentuje hlavní místnost na 3 části
- podkroví s žebříkem
Půdorys dřevostavby

Tabulka základních cen dřevostavby
| Tloušťka stěny | Cena |
| 50 mm | 359 900 Kč |
| 70 mm | 419 900 Kč |
Uvedené ceny jsou vč. 20 % DPH, dopravy a montáže.
Pokud je dřevostavba vnímána jako stavba doplňková ke stavbě hlavní, fakturujeme ve snížené sazdě DPH.
Cena: 359900 Kč
| Název | Velikost |
| 7.5 MB |
Nejoblíbenější dřevostavby
Přihlásit se
© Keliwood s.r.o., Stavby: +420 - 777 005 666, Prodej: +420 - 777 005 669, Servis: +420 - 777 005 888 E-mail: info@keliwood.cz










